

Price on request
Builder Price
Configuration
2, 3 BHK
Carpet Area
772 - 1,203 sq ft
Possession Status
Launch
Overview
- Possession Start DateJun'26
- StatusLaunch
- Total Area3.47 Acres
- AvailabilityNew
- RERA IDPR/GJ/VALSAD/VALSAD/Others/RAA06855/070320
Project Specifications
Doors
Main:
Decorative Main Door
Internal:
Flush Door
Flooring
Master Bedroom:
Floor-Vertified Tiles
Kitchen:
- Kitchen with granite platform and stainless steel sink
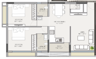
Shivam Sumukh Township Floor Plans
- 2 BHK
- 3 BHK
-
-
Shivam Sumukh Township Amenities
- Children's play area
- Car Parking
- Basketball Court
- Tennis Court
- Indoor Games
- Intercom
- Power Backup
- Landscape Garden and Tree Planting
- Landscaping & Tree Planting
Shivam Sumukh Township Gallery
About Shivam Developers Valsad
- Total Projects2
- Ongoing Projects2


























