

- Possession Start DateFeb'16
- StatusCompleted
- Total Launched apartments12
- Launch DateSep'15
- AvailabilityResale
Salient Features
- Spacious properties
- Rainwater harvesting are some of the amenities in the project
- Schools, recreational, hospitals are situated in close vicinity
More about Guru Lakshmi Saraswathi And Parvathi
Guru Homes is a well-known real estate group. They have completed several residential projects and their upcoming project is Lakshmi Saraswathi and Parvathi which is located in Chromepet, Chennai. The apartment is being constructed beautifully, spaciously and in a very ultra modern fashion and it will be providing its residents with several amenities like a gym, a swimming pool, a children’s play area, a club house, 24*7 security etc. It is well connected to the rest part of t...View more
![HDFC (5244) HDFC (5244)]()
![LIC LIC]()
![Axis Bank Axis Bank]()
![PNB Housing PNB Housing]()
![Indiabulls Indiabulls]()
![Citibank Citibank]()
![TATA CAPITAL TATA CAPITAL]()
- + 2 more banksshow less
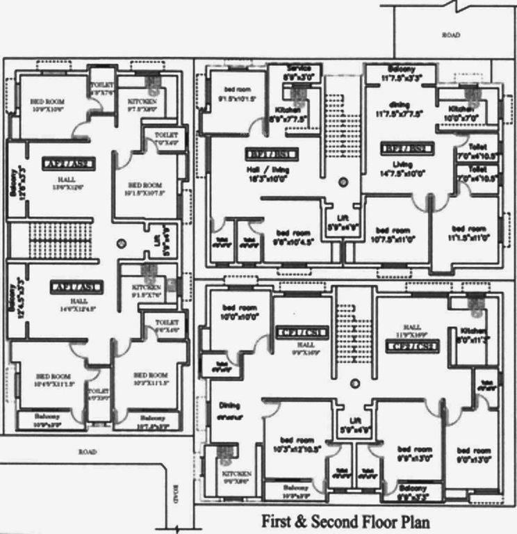
Project Specifications
- 2 BHK
- Power Backup
- Car Parking
- Lift Available
- Rain Water Harvesting
- Good And Ample Sub Soil Water
- Closed Car Parking
Guru Lakshmi Saraswathi And Parvathi Gallery

About Guru Homes

- Years of experience38
- Total Projects24
- Ongoing Projects0

































