

Price on request
Builder Price
Configuration
5 BHK
Builtup area
2,700 sq ft
Possession Status
Completed
Overview
- Possession Start DateApr'15
- StatusCompleted
- Total Launched villas52
- Launch DateFeb'12
- AvailabilityResale
More about Apollo Prakriti Enclave
It offers 5 BHK Villa in Indore East. The project is Completed project and possession in May 15. Among the many luxurious amenities that the project boasts are Jogging Track, 24 Hours Pressurized Water Supply, Water Supply, CCTV Surveillance System, RCC Roads with Side Paving etc.
Project Specifications
Doors
Internal:
Laminated Flush Door
Main:
Decorative Main Door
Flooring
Balcony:
Marble Granite Tiles
Kitchen:
Vitrified Tiles
Living/Dining:
Marble Granite Tiles
Master Bedroom:
Wooden Flooring
Other Bedroom:
Wooden Flooring
Toilets:
Anti Skid Tiles
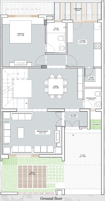
Apollo Prakriti Enclave Floor Plans
- 5 BHK
-
Apollo Prakriti Enclave Amenities
- Children's play area
- Intercom
- 24 X 7 Security
- Power Backup
- Car Parking
- Temple
- RCC Roads with Side Paving
- Cctv
- Atm
- 24X7 Water Supply
- Panic Alarm Button in Every Unit
- Jogging Track
- Landscape Garden and Tree Planting
- Water Supply
- Security Cabin
- Entrance Lobby
Apollo Prakriti Enclave Gallery
About Apollo Creations

- Years of experience40
- Total Projects9
- Ongoing Projects4



















