
PROJECT RERA ID : HIRA/P/SOU/2019/000743
Siddha Suburbia Bungalowby Siddha Group

₹ 88.81 L - ₹ 1.17 Cr
Builder Price
See inclusions
3, 5 BHK
Villa
1,424 - 1,877 sq ft
Builtup area
Project Location
Narendrapur, Kolkata
Overview
- Jul'25Possession Start Date
- Under ConstructionStatus
- 2 AcresTotal Area
- 42Total Launched villas
- Dec'19Launch Date
- New and ResaleAvailability
Salient Features
- Spacious and well-designed bungalows on NSC Bose Road.
- Premium club with all amenities, Access to South Kolkata first Rooftop. Skywalk amenities, Skyplex, Party Deck, Jogging Track many more.
- Baruipur Station is just 3.3 km away.
- Easy connectivity with Rajpur Bazaar, which is 4.2 km away.
- Baruipur Market is as near as 5.6 kms.
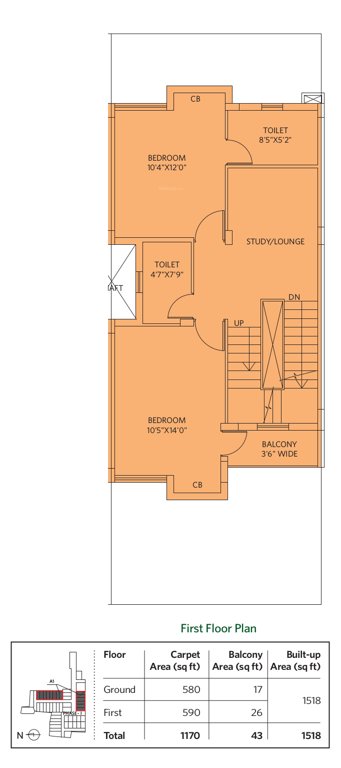
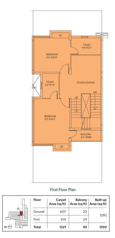
Siddha Suburbia Bungalow Floor Plans
- 3 BHK
- 5 BHK
| Floor Plan | Area | Builder Price |
|---|---|---|
![]() | 1424 sq ft (3BHK+3T + Study Room) | ₹ 88.81 L |
![]() | 1472 sq ft (3BHK+3T + Study Room) | ₹ 91.81 L |
![]() | 1518 sq ft (3BHK+3T + Study Room) | ₹ 94.68 L |
![]() | 1593 sq ft (3BHK+3T + Study Room) | - |
1 more size(s)less size(s)
Report Error
Our Picks
- PriceConfigurationPossession
- Current Project
Siddha Suburbia Bungalowby Siddha GroupNarendrapur, Kolkata₹ 88.81 L - ₹ 1.17 Cr3,5 BHK Villa1,424 - 1,877 sq ftJul '25 - Recommended
Utalika Luxuryby Ambuja NeotiaMukundapur, Kolkata₹ 2.70 Cr - ₹ 8.35 Cr2,3,4,5 BHK Apartment2,022 - 9,003 sq ftMay '24 - Recommended
Utalika Luxury Phase 5 Panchamiby Ambuja NeotiaMukundapur, Kolkata₹ 2.67 Cr - ₹ 6.34 Cr2,3,4 BHK Apartment1,842 - 4,375 sq ftMay '28
Siddha Suburbia Bungalow Amenities
- Open Car Parking
- 24 Hours Water Supply
- 24 X 7 Security
- Amphitheater
- ATM
- Badminton Court
- Cafeteria
- Children's play area
Siddha Suburbia Bungalow Specifications
Flooring
Balcony:
Ceramic Tiles
Living/Dining:
Vitrified Tiles
Master Bedroom:
Vitrified Tiles
Other Bedroom:
Vitrified Tiles
Toilets:
Ceramic Tiles
Kitchen:
Anti Skid Ceramic Tiles
Walls
Exterior:
Acrylic Paint
Toilets:
Ceramic Tiles
Kitchen:
Ceramic Tiles Dado
Interior:
Putty on Walls
Gallery
Siddha Suburbia BungalowElevation
Siddha Suburbia BungalowVideos
Siddha Suburbia BungalowAmenities
Siddha Suburbia BungalowFloor Plans
Siddha Suburbia BungalowNeighbourhood
Siddha Suburbia BungalowConstruction Updates
Siddha Suburbia BungalowOthers
Payment Plans

Contact NRI Helpdesk on
Whatsapp(Chat Only)
Whatsapp(Chat Only)
+91-96939-69347
Contact Helpdesk on
Whatsapp(Chat Only)
Whatsapp(Chat Only)
+91-96939-69347
About Siddha Group

- 40
Years of Experience - 47
Total Projects - 15
Ongoing Projects - RERA ID
Established in 1986, Siddha Group is a reputed real estate development company. Mr. Chandra Prakash Jain is the Chairman of the company and Mr. Sanjay Jain is the Managing Director. With a strong presence in Jaipur and Kolkata, the primary business of Siddha Group involves development of commercial and residential properties. Top Projects till Date: Siddha Lovelock in Ballygunge, Kolkata comprising 5 units of 5 BHK apartments with sizes ranging from 3,710 sq. ft. to 4,345 sq. ft. Siddha Happy... read more
Similar Projects
- PT ASSIST
Ambuja Utalika Luxuryby Ambuja NeotiaMukundapur, Kolkata₹ 2.70 Cr - ₹ 8.35 Cr - PT ASSIST
Ambuja Utalika Luxury Phase 5 Panchamiby Ambuja NeotiaMukundapur, Kolkata₹ 2.67 Cr - ₹ 6.34 Cr - PT ASSIST
Mirania Evaraby Mirania Realty LlpSantoshpur, Kolkata₹ 1.81 Cr - ₹ 3.16 Cr - PT ASSIST
Avana Phase 1by Merlin GroupTollygunge, Kolkata₹ 60.80 L - ₹ 1.50 Cr - PT ASSIST
Salarpuria Merakiby Salarpuria GroupJoka, Kolkata₹ 85.00 L - ₹ 92.72 L
Discuss about Siddha Suburbia Bungalow
comment
Disclaimer
PropTiger.com is not marketing this real estate project (“Project”) and is not acting on behalf of the developer of this Project. The Project has been displayed for information purposes only. The information displayed here is not provided by the developer and hence shall not be construed as an offer for sale or an advertisement for sale by PropTiger.com or by the developer.
The information and data published herein with respect to this Project are collected from publicly available sources. PropTiger.com does not validate or confirm the veracity of the information or guarantee its authenticity or the compliance of the Project with applicable law in particular the Real Estate (Regulation and Development) Act, 2016 (“Act”). Read Disclaimer
The information and data published herein with respect to this Project are collected from publicly available sources. PropTiger.com does not validate or confirm the veracity of the information or guarantee its authenticity or the compliance of the Project with applicable law in particular the Real Estate (Regulation and Development) Act, 2016 (“Act”). Read Disclaimer







































