

- Possession Start DateNov'23
- StatusCompleted
- Total Launched apartments46
- Launch DateJan'19
- AvailabilityResale
- RERA IDP52000019775
Salient Features
- Enhanced living with amenities like landscaped gardens, swimming pool, olympic size swimming pool, tree plantation
- Accessibility to key landmarks
- Medical facilities are within easy reach
More about Tejas Ambience
Tejas Infra Tech Ambience Residency Group has built up a residential project which is based at Ulwe region of Mumbai. The project offers great apartments with all contemporary fittings and modesty as well as comfort. All the daily needs like bus station, hospital, bank, commercial complex, ATM’s, office headquarters, hospital, park, play school, petrol pump, train station, restaurants etc. all are present in the neighbourhood. The different amenities of the project 24 hours se...View more
- 1 BHK
- 2 BHK
- Gymnasium
- Indoor Games
- Car Parking
- Children's play area
- Intercom
- 24 X 7 Security
- Power Backup
- Water Purify Treatment
- Fire Fighting System
- Sewage Treatment Plant
- 24X7 Water Supply
- Landscape Garden and Tree Planting
- Electrical Meter Room, Sub-Station, Receiving Station
- Landscaping & Tree Planting
- Open Parking
- Water Conservation, Rain water Harvesting
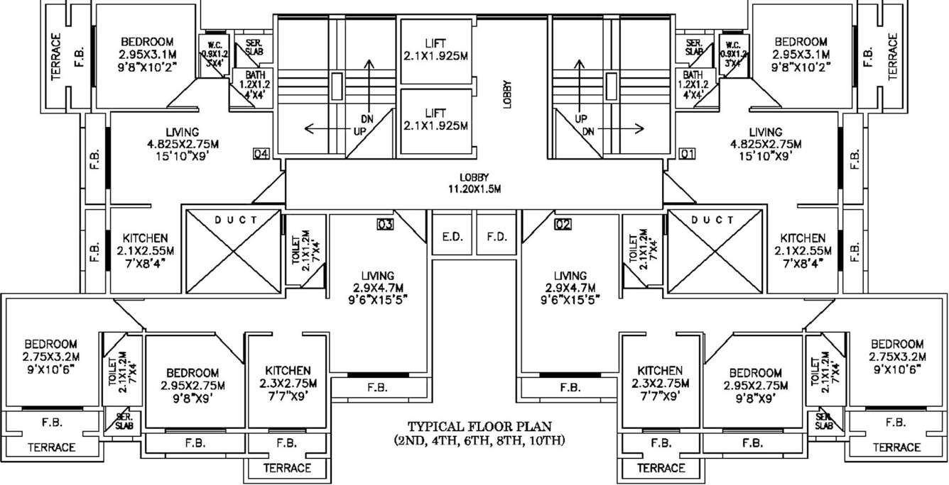
Tejas Ambience Gallery

About Tejas Builders and Developers

- Total Projects21
- Ongoing Projects1


























