


Price on request
Builder Price
Configuration
2, 3 BHK
Carpet Area
1,245 - 1,487 sq ft
Possession Status
Under Construction
Overview
- Possession Start DateDec'29
- StatusUnder Construction
- Total Area0.9 Acres
- Total Launched apartments144
- Launch DateMar'25
- AvailabilityNew
- RERA IDP52100079440
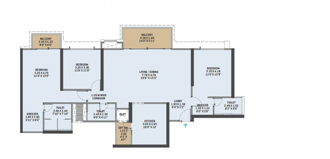
Mexus Vtp Monarque Phase 2 Floor Plans
- 2 BHK
- 3 BHK
-
-
Mexus Vtp Monarque Phase 2 Amenities
- 24X7 Water Supply
- Internal Roads & Footpaths
- Fire Alarm
- Aggregate area of recreational Open Space
- Community Buildings
- Electrical meter Room
- Energy management
- Landscape Garden and Tree Planting
- Solid Waste Management And Disposal
- Street Lighting
- Water Conservation, Rain water Harvesting
Mexus Vtp Monarque Phase 2 Gallery
Home Loan Calculator
Select a unit
Loan Amount
₹
Loan Tenure (in years)
Y
Interest Rate (% P. A.)
%
0
EMI per month
Principal Amount0
Interest Amount0
Total amount payable0
About Mexus Real Estate Developers
- Total Projects2
- Ongoing Projects2
More projects by Mexus Real Estate Developers
Similar Projects











