

₹ 1.80 Cr - ₹ 5.85 Cr
Builder Price
Home Loan EMI starts at ₹ 1.40 LSee inclusions
Configuration
4, 5 BHK
Builtup area
1,523 - 4,953 sq ft
Possession Status
Under Construction
Avg. Price
₹ 11,818 sq.ft
Overview
- Possession Start DateNov'26
- StatusUnder Construction
- Total Area1.81 Acres
- Launch DateJun'22
- AvailabilityNew
- RERA IDPR/GJ/VADODARA/VADODARA/Others/RAA10619/020922
Salient Features
- Cctv, Video Door System, And Security Intercom.
- 4 K.w. Solar System For Sustainable Energy.
- Clubhouse, Gym, Swimming Pool, And Wi-fi Zone.
- Ro Purifier, Fire Extinguishers, Anti-termite Treatment.
- Vitrified Tiles, Granite Staircase, And Designer Bathrooms.
Project Specifications
Doors
Main:
Wooden Frame
Internal:
Both Side Teak Veneered / Laminated Flush Door
Walls
Exterior:
Acrylic Paint
Kitchen:
Designer Tiles Dado up to Lintel Level
Toilets:
Designer Tiles Dado up to Lintel Level
Interior:
Putty on Walls
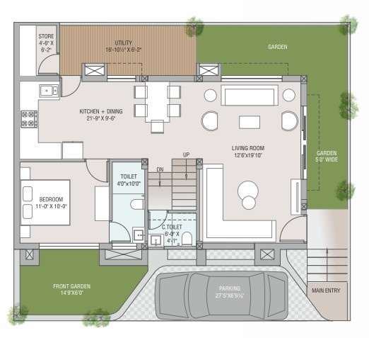
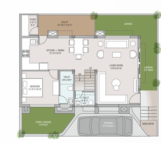
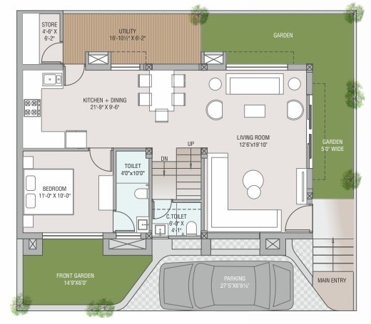
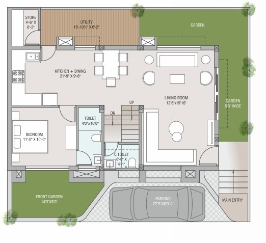
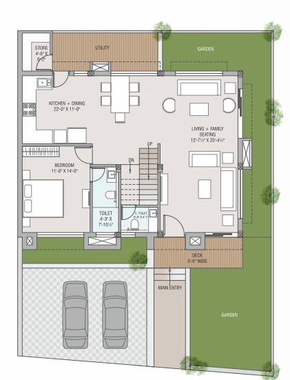
Bhagyalaxshmi Aurum Villa Floor Plans
- 4 BHK
- 5 BHK
₹ 1.80 Cr
₹ 2.66 Cr
Bhagyalaxshmi Aurum Villa Amenities
- Swimming Pool
- Children's play area
- Indoor Games
- Banquet Hall
- Community Hall
- 24X7 Water Supply
- Temple
- Internal Roads
- Sewage Treatment Plant
- Gymnasium
- Car Parking
- Gated Community
- Park
- Jogging Track
- Multipurpose Room
- 24 X 7 Security
- Cycling & Jogging Track
- Anti-termite Treatment
- Senior Citizen Sitout
- Landscape Garden and Tree Planting
- Yoga/ Meditation Area
- Multipurpose Hall
- Street Lighting
Bhagyalaxshmi Aurum Villa Gallery
Payment Plans

About Bhagyalaxshmi Buildcon
- Total Projects1
- Ongoing Projects1














































































































