

- Possession Start DateApr'22
- StatusCompleted
- Total Area2 Acres
- Total Launched apartments81
- Launch DateNov'17
- AvailabilityResale
- RERA IDPRM/KA/RERA/1251/446/PR/171014/000123
Salient Features
- Karmelaram Railway Station (4.3 Km) Away
- 52.9% price appreciation in the last 1 year
- Columbia Asia Hospital Sarjapur Road (0.1 Km) Away
More about The Address The Central Regency Address
Situated in Bellandur, Bangalore, The Central Regency Address is a gated community. The project is in its prelaunch phase and the units can be availed through the developer. They are of varying configurations and sizes. The Address Maker is a renowned property developer of Bangalore. They have numerous projects to their name, some of which are under construction. Most of their projects are located towards the west of the city. Bellandur is a part of southeast Bangalore. The area is well-linked t...View more
![HDFC (5244) HDFC (5244)]()
![Axis Bank Axis Bank]()
![PNB Housing PNB Housing]()
![Indiabulls Indiabulls]()
![Citibank Citibank]()
![DHFL DHFL]()
![L&T Housing (DSA_LOSOT) L&T Housing (DSA_LOSOT)]()
![IIFL IIFL]()
- + 3 more banksshow less
Project Specifications
- 2 BHK
- 3 BHK
- Aroma Garden
- Gymnasium
- Swimming Pool
- Club House
- Multipurpose Room
- Jogging Track
- Power Backup
- Car Parking
- Massage Room
- Ramp for Disabled
- Pump
- Tensile Umberallas
- Common Lighting
- Central Court
- Water Feature Edge
- 24 X 7 Security
- Ramps for Handicap friendliness
- Feature Wall
- Regency Court
- Lift(s)
- Children's play area
- Gated Community
- 24X7 Water Supply
- Rain Water Harvesting
- Indoor Games
- Closed Car Parking
- Basketball Court
- Squash Court
- Landscaped Gardens
- Fire Fighting System
- Spa/Sauna/Steam
- Service Lift
- Landscape_Garden_and_Tree_Planting
- Cycling & Jogging Track
- Billiards/Snooker Table
- Chess Board
- Fountains
- Steam Room
- Yoga/Meditation Area
- Table Tennis
- Kid's Pool
- Entrance Lobby
- Multipurpose Hall
- Reserved Parking
- Visitor Parking
- Fire Sprinklers
- Sauna Bath
- Carrom
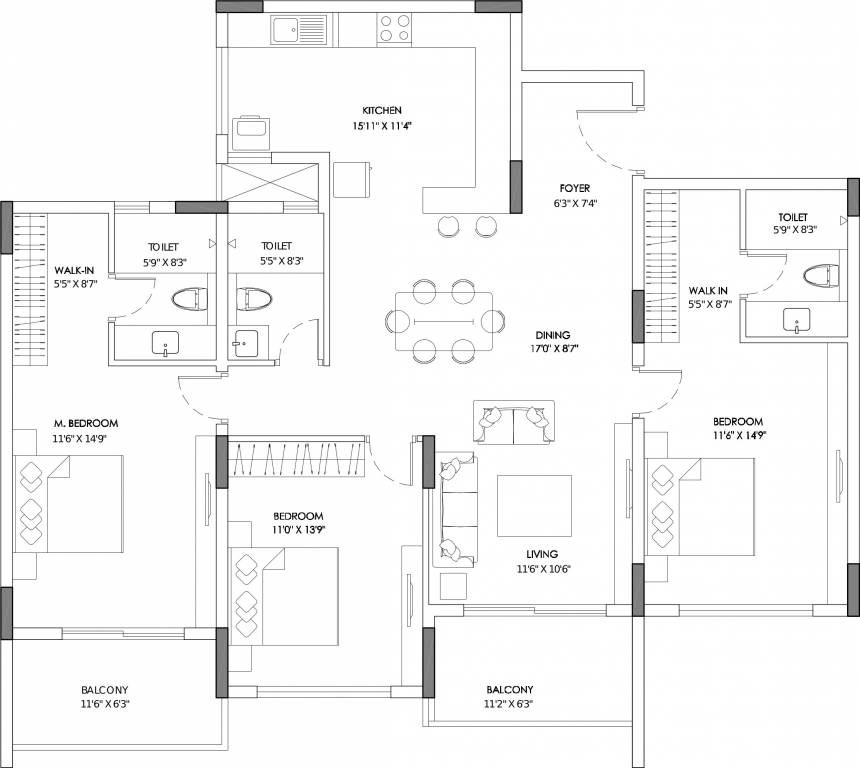
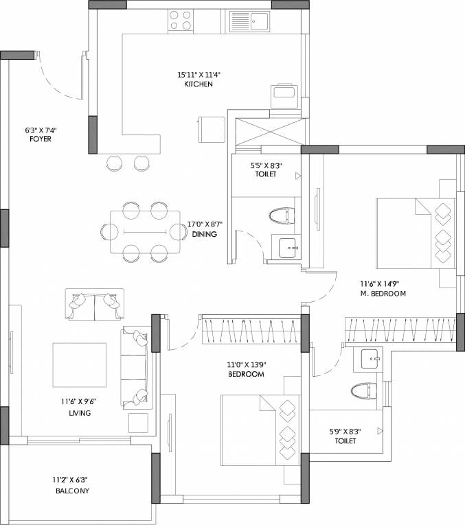
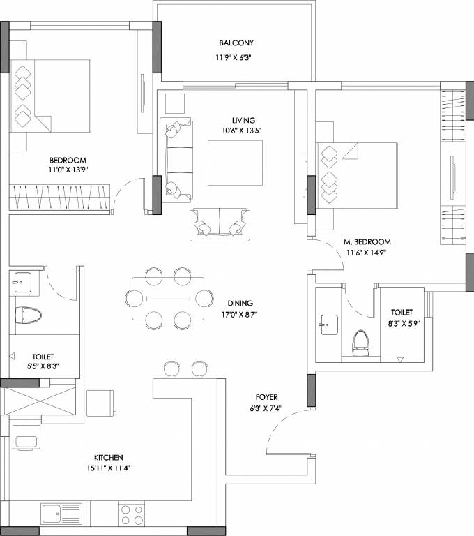
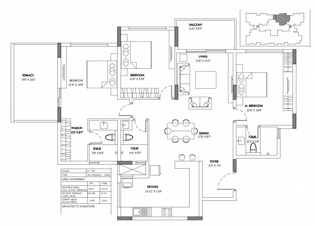
The Address The Central Regency Address Gallery
Payment Plans


About The Address Maker

- Total Projects16
- Ongoing Projects4




























































