

- Possession Start DateOct'17
- StatusCompleted
- Total Launched apartments12
- Launch DateJun'15
- AvailabilityResale
- RERA ID.
Salient Features
- Banaswadi Railway Station (1.7 Km) Away
- Zion Hospital (0.4 Km) Away
- Emmanuel Sugnana Jyothi High School (0.8 Km) Away
- Ever Shine English High School (0.4 Km) Away
- Bangalore City College (1.0 Km) Away
More about Blue Sunshine
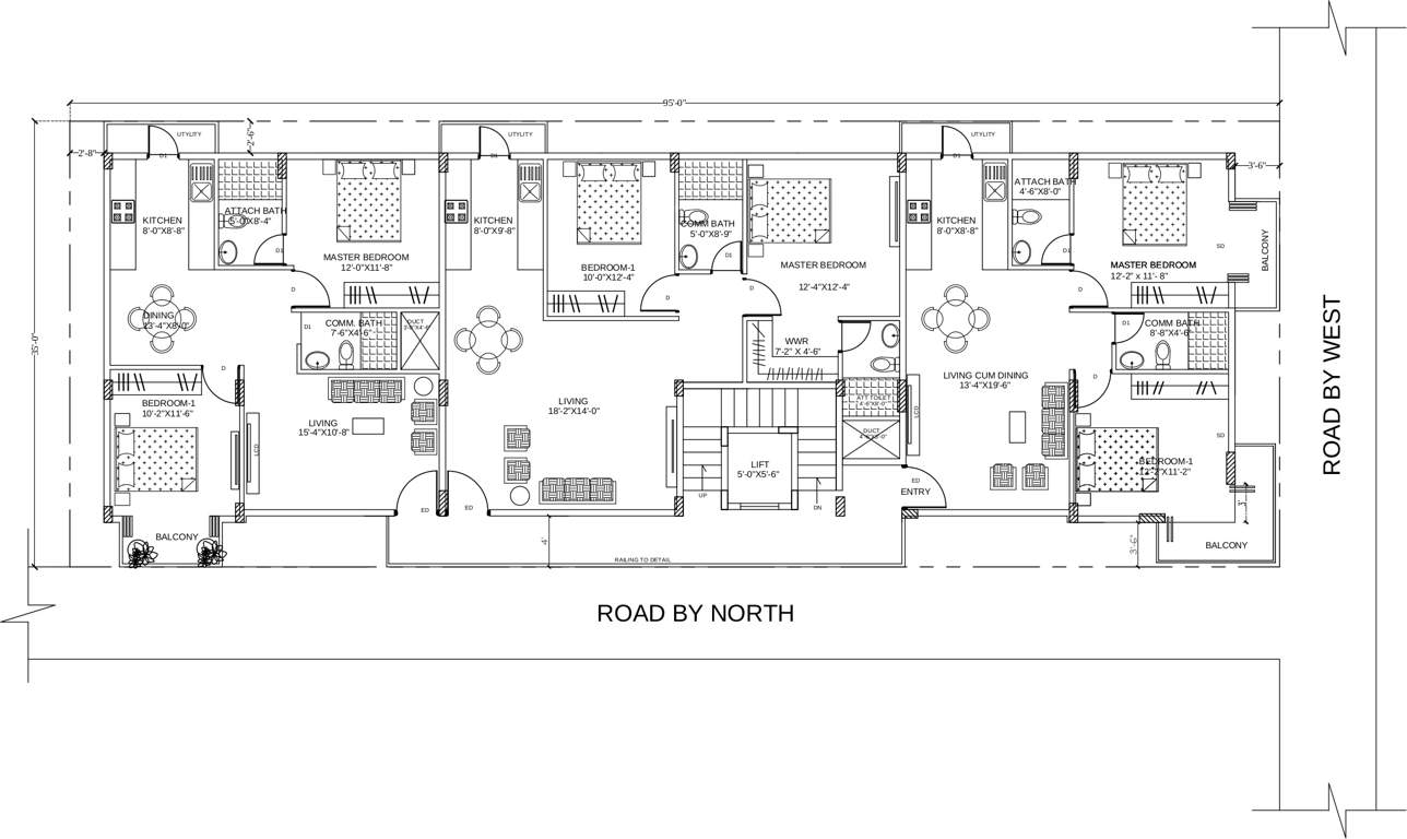
Situated in Banaswadi, Bangalore, Blue Valley Sunshine is an apartment community. At present the community is under construction and the flats can be gotten through resale and the developer. Each unit is spacious and can be moved into right away. Numerous amenities such as maintenance staff, power back up, multipurpose room, swimming pool, indoor games room and sports facilities have been provided for home owners to make use of. Blue Valley has been a part of the real estate sector for the past ...View more
![HDFC (5244) HDFC (5244)]()
![Axis Bank Axis Bank]()
![PNB Housing PNB Housing]()
![Indiabulls Indiabulls]()
![Citibank Citibank]()
![DHFL DHFL]()
![L&T Housing (DSA_LOSOT) L&T Housing (DSA_LOSOT)]()
![IIFL IIFL]()
- + 3 more banksshow less
Project Specifications
- 2 BHK
- Gymnasium
- Swimming Pool
- Children's play area
- Club House
- Multipurpose Room
- Sports Facility
- Rain Water Harvesting
- Intercom
- 24 X 7 Security
- Power Backup
- Indoor Games
- Maintenance Staff
- Car Parking
- Jogging Track
- Lift Available
- Vaastu Compliant
- 24 Hours Water Supply
- CCTV
- Fire Fighting System
- Gated Community
- Sewage Treatment Plant
- Closed Car Parking
- Landscaped Gardens
- Community Hall
- Landscape Garden and Tree Planting
- Cycling & Jogging Track
- Party Lawn
- Senior Citizen Siteout
- Paved Compound
- Multipurpose Hall
- Open Parking
Blue Sunshine Gallery
Payment Plans

About Blue Valley

- Years of experience22
- Total Projects15
- Ongoing Projects0

































